短程蒸餾器
![]() |
![]() |

產品概述
許多如石油重渣油、化學藥品、藥物及天然食品、保健品、脂肪酸等,常常是熱敏性的、粘滯的及/或具有高沸點的物料。要把這些物料從它們的其它組分分離出來,而保持產物的質量,只能在低的沸騰溫度甚至是不到沸騰溫度下精餾,且只能在很短的時間里,把熱分解作用或聚合作用減小,以消除對產品的破壞。
當操作真空度約為500Pa時,可以在刮膜蒸發器或降膜蒸發器中進行。但是,如果蒸餾須在中高真空下操作(如壓力在0.001~100Pa之間)就存在問題了。須選用在產品蒸汽壓不超過通過加熱表面和冷凝表面之間壓差的蒸發器,因而帶有外置冷凝器的蒸發器被排除在中高真空范圍的蒸餾過程之外。
相比之下,SY型短程蒸發器適合于這種應用場合,冷凝器被制造在蒸發器內,直接位于加熱蒸餾發生的對面。所以,短程蒸發器是項較新的尚未應用于工業化生產,能解決大量常規蒸餾技術所不能解決的新型分離技術。
短程蒸餾器按刮膜器形式分三種形式:滾膜、滑動刮膜、鉸鏈刮膜,根據物料的粘度、處理性質選用不同的刮膜器。
短的停留時間 刮膜器的作用,使得液膜在加熱面停留時間短。
低的蒸餾溫度 由于冷凝器直接位于加熱面的對面,減少了壓差,所以具有高的真空度,物料可在低的溫度下甚至于無需到沸點即蒸餾。
粘性物和產品中含有固體物 刮片的深深浸入,靠一個相當可觀的邊緣,料膜引起一個強烈的剪切及混合效應,減輕了待處理液的粘性,適合處理粘度到50Pas,并防止加熱面結垢,適合于含固體料液。
薄的蒸餾液面 刮膜器的作用將料液刮成薄的液膜。分離徹底。
熱敏感物料
高分離比 精密的刮板使用使用得薄的液膜被均勻地分布在加熱面上,導致整個加熱面濕潤。這樣允許操作單元高沸分離比。這意味著在案列中進入的90%以上被蒸發,恒量殘留物質中水平能被完成。
在沸騰的薄膜和冷凝面之間的壓差是蒸汽流向的驅動力,對于微小的壓力降就會引起蒸汽的流動。在1mbar下運行要求在沸騰面和冷凝面之間短的距離,基于這個原理制作的蒸餾器稱為短程蒸餾器。短程蒸餾器(分子蒸餾)有一個內置冷凝器在加熱面的對面,并使操作壓力降到0.001mbar。
短程蒸餾器是一個工作在1~0.001mbar壓力下熱分離技術過程,它較低的沸騰溫度,適合熱敏性、高沸點物。其基本構成:帶有加熱夾套的圓柱型筒體,轉子和內置冷凝器;在轉子的固定架上精確裝有刮膜器和防飛濺裝置。內置冷凝器位于蒸發器的中心,轉子在圓柱型筒體和冷凝器之間旋轉。
短程蒸餾器由外加熱的垂直圓筒體、位于它的中心冷凝器及在蒸餾器和冷凝器之間旋轉的刮膜器組成。
蒸餾過程是:物料從蒸發器的頂部加入,經轉子上的料液分布器將其連續均勻地分布在加熱面上,隨即刮膜器將料液刮成一層薄、呈湍流狀的液膜,并以螺旋狀向下推進。在此過程中,從加熱面上逸出的輕分子,經過短的路線和幾乎未經碰撞就到內置冷凝器上冷凝成液,并沿冷凝器管流下,通過位于蒸發器底部的出料管排出;殘液即重分子在加熱區下的圓形通道中收集,再通過側面的出料管中流出。
短程蒸餾器還適合于進行分子蒸餾。分子流從加熱面直接到冷凝器表面。如圖所示,分子蒸餾過程可發如下四步:
1、分子從液相主體向蒸發表面擴散:
通常,液相中的擴散速度是控制分子蒸餾速度的主要因素,所以應盡量減薄液層厚度及強化液層的流動。
2、分子在液層表面上的自由蒸發:
蒸發速度隨著溫度的升高而上升,但分離因素有時卻隨著溫度的升高而降低,所以,應以被加工物質的熱穩定性為前提,選擇經濟合理的蒸餾溫度。
3、分子從蒸發表面向冷凝面飛射:
蒸氣分子從蒸發面向冷凝面飛射的過程中,可能彼此相互碰撞,也可能和殘存于兩面之間的空氣分子發生碰撞。由于蒸發分子遠重于空氣分子,且大都具有相同的運動方向,所以它們自身碰撞對飛射方向和蒸發速度影響不大。而殘氣分子在兩面間呈雜亂無章的熱運動狀態,故殘氣分子數目的多少是影響飛射方向和蒸發速度的主要因素。
4、分子在冷凝面上冷凝:
只要保證冷熱兩面間有足夠的溫度差(一般為70~100℃),冷凝表面的形式合理且光滑則認為冷凝步驟可以在瞬間完成,所以選擇合理冷凝器的形式相當重要。
由此可得,分子蒸餾的條件是:
1、殘余氣體的分壓必須很低,使殘余氣體的平均自由程長度是蒸餾器和冷凝器表面之間距離的倍數。
2、在飽和壓力下,蒸汽分子的平均自由程長度必須與蒸發器和冷凝器表面之間距離具有相同的數量級。
在這此理想的條件下,蒸發在沒有任何障礙的情況下從殘余氣體分子中發生。所有蒸汽分子在沒有遇到其它分子和返回到液體過程中到達冷凝器表面。蒸發速度在所處的溫度下達到可能的大值。蒸發速度與壓力成正比,因而,分子蒸餾的餾出液量相對比較小。
在SY短程蒸餾中,冷凝器和加熱表面之間的距離約為20~50mm,殘余氣體的壓力為10-3mbar時,殘余氣體分子的平均自由程長度約為2倍長。短程蒸餾器完全能滿足分子蒸餾的所有必要條件。
分子蒸餾有如下特點:
1、普通蒸餾在沸點溫度下進行分離,分子蒸餾可以在任何溫度下進行,只要冷熱兩面間存在著溫度差,就能達到分離目點。
2、普通蒸餾是蒸發與冷凝的可逆過程,液相和氣相間可以形成相平衡狀態;而分子蒸餾過程中,從蒸發表面逸出的分子直接飛射到冷凝面上,中間不與其它分子發生碰撞,理論上沒有返回蒸發面的可能性,所以,分子蒸餾過程是不可逆的。
3、普通蒸餾有鼓泡、沸騰現象;分子蒸餾過程是液層表面上的自由蒸發,沒有鼓泡現象。
4、表示普通蒸餾分離能力的分離因素與組元的蒸汽壓之比有關,表示分子蒸餾分離能力的分離因素則與組元的蒸汽壓和分子量之比有關,并可由相對蒸發速度求出。
裝置特性
高沸點物劑
使用專用的金屬部件,能處理沸點達450℃的物料在真空0.001mbar條件下。
粘性和容納有固體物料
浸入液膜的刮片產生強烈的剪切力,能相當可觀地減輕混合液的粘度,因此,可處理粘度達50Pas的物料。
固體含量富余料
浸入液膜的刮片產生一個強烈的攪拌力,同樣能防止固體在加熱面上結垢。
顏色敏感物料
在SY型短程蒸餾器中,本公司專業設計有一種裝置能防止金屬磨損。這一裝置重要,萬一處理顏色敏感物料因非揮發物(重組分)流經蒸餾器由于金屬磨損而受到影響。
高蒸餾比
使用制作精密的刮膜片,意味著液膜能被均勻地涂沫在加熱面并使整個受熱面濕潤,這就能滿足高蒸餾比的要求,使得90%以上產品被蒸餾,維持恒量的殘留物。
低維修費用
由于合理的結構設計和獨特的轉子,避免了刮膜片和金屬表面的磨損。
結構特點
1. 精密的轉子
深深浸入在液膜里的刮膜片產生的強烈湍流,導致在加熱面產生一個較好的熱傳遞比其它轉子系統(例大金屬棒上套PTFE管),下列例子為異氰酸酯的提純從預聚物里,含量小于0.1%。
許多如石油重渣油、化學藥品、藥物及天然食品、保健品、脂肪酸等,常常是熱敏性的、粘滯的及/或具有高沸點的物料。要把這些物料從它們的其它組分分離出來,而保持產物的質量,只能在低的沸騰溫度甚至是不到沸騰溫度下精餾,且只能在很短的時間里,把熱分解作用或聚合作用減小,以消除對產品的破壞。
當操作真空度約為500Pa時,可以在刮膜蒸發器或降膜蒸發器中進行。但是,如果蒸餾須在中高真空下操作(如壓力在0.001~100Pa之間)就存在問題了。須選用在產品蒸汽壓不超過通過加熱表面和冷凝表面之間壓差的蒸發器,因而帶有外置冷凝器的蒸發器被排除在中高真空范圍的蒸餾過程之外。
相比之下,SY型短程蒸發器適合于這種應用場合,冷凝器被制造在蒸發器內,直接位于加熱蒸餾發生的對面。所以,短程蒸發器是項較新的尚未應用于工業化生產,能解決大量常規蒸餾技術所不能解決的新型分離技術。
短程蒸餾器按刮膜器形式分三種形式:滾膜、滑動刮膜、鉸鏈刮膜,根據物料的粘度、處理性質選用不同的刮膜器。
短的停留時間 刮膜器的作用,使得液膜在加熱面停留時間短。
低的蒸餾溫度 由于冷凝器直接位于加熱面的對面,減少了壓差,所以具有高的真空度,物料可在低的溫度下甚至于無需到沸點即蒸餾。
粘性物和產品中含有固體物 刮片的深深浸入,靠一個相當可觀的邊緣,料膜引起一個強烈的剪切及混合效應,減輕了待處理液的粘性,適合處理粘度到50Pas,并防止加熱面結垢,適合于含固體料液。
薄的蒸餾液面 刮膜器的作用將料液刮成薄的液膜。分離徹底。
熱敏感物料
高分離比 精密的刮板使用使用得薄的液膜被均勻地分布在加熱面上,導致整個加熱面濕潤。這樣允許操作單元高沸分離比。這意味著在案列中進入的90%以上被蒸發,恒量殘留物質中水平能被完成。
![]() |
![]() |
短程蒸餾器是一個工作在1~0.001mbar壓力下熱分離技術過程,它較低的沸騰溫度,適合熱敏性、高沸點物。其基本構成:帶有加熱夾套的圓柱型筒體,轉子和內置冷凝器;在轉子的固定架上精確裝有刮膜器和防飛濺裝置。內置冷凝器位于蒸發器的中心,轉子在圓柱型筒體和冷凝器之間旋轉。
短程蒸餾器由外加熱的垂直圓筒體、位于它的中心冷凝器及在蒸餾器和冷凝器之間旋轉的刮膜器組成。
蒸餾過程是:物料從蒸發器的頂部加入,經轉子上的料液分布器將其連續均勻地分布在加熱面上,隨即刮膜器將料液刮成一層薄、呈湍流狀的液膜,并以螺旋狀向下推進。在此過程中,從加熱面上逸出的輕分子,經過短的路線和幾乎未經碰撞就到內置冷凝器上冷凝成液,并沿冷凝器管流下,通過位于蒸發器底部的出料管排出;殘液即重分子在加熱區下的圓形通道中收集,再通過側面的出料管中流出。
短程蒸餾器還適合于進行分子蒸餾。分子流從加熱面直接到冷凝器表面。如圖所示,分子蒸餾過程可發如下四步:
1、分子從液相主體向蒸發表面擴散:
通常,液相中的擴散速度是控制分子蒸餾速度的主要因素,所以應盡量減薄液層厚度及強化液層的流動。
2、分子在液層表面上的自由蒸發:
蒸發速度隨著溫度的升高而上升,但分離因素有時卻隨著溫度的升高而降低,所以,應以被加工物質的熱穩定性為前提,選擇經濟合理的蒸餾溫度。
3、分子從蒸發表面向冷凝面飛射:
蒸氣分子從蒸發面向冷凝面飛射的過程中,可能彼此相互碰撞,也可能和殘存于兩面之間的空氣分子發生碰撞。由于蒸發分子遠重于空氣分子,且大都具有相同的運動方向,所以它們自身碰撞對飛射方向和蒸發速度影響不大。而殘氣分子在兩面間呈雜亂無章的熱運動狀態,故殘氣分子數目的多少是影響飛射方向和蒸發速度的主要因素。
4、分子在冷凝面上冷凝:
只要保證冷熱兩面間有足夠的溫度差(一般為70~100℃),冷凝表面的形式合理且光滑則認為冷凝步驟可以在瞬間完成,所以選擇合理冷凝器的形式相當重要。
由此可得,分子蒸餾的條件是:
1、殘余氣體的分壓必須很低,使殘余氣體的平均自由程長度是蒸餾器和冷凝器表面之間距離的倍數。
2、在飽和壓力下,蒸汽分子的平均自由程長度必須與蒸發器和冷凝器表面之間距離具有相同的數量級。
在這此理想的條件下,蒸發在沒有任何障礙的情況下從殘余氣體分子中發生。所有蒸汽分子在沒有遇到其它分子和返回到液體過程中到達冷凝器表面。蒸發速度在所處的溫度下達到可能的大值。蒸發速度與壓力成正比,因而,分子蒸餾的餾出液量相對比較小。
在SY短程蒸餾中,冷凝器和加熱表面之間的距離約為20~50mm,殘余氣體的壓力為10-3mbar時,殘余氣體分子的平均自由程長度約為2倍長。短程蒸餾器完全能滿足分子蒸餾的所有必要條件。
分子蒸餾有如下特點:
1、普通蒸餾在沸點溫度下進行分離,分子蒸餾可以在任何溫度下進行,只要冷熱兩面間存在著溫度差,就能達到分離目點。
2、普通蒸餾是蒸發與冷凝的可逆過程,液相和氣相間可以形成相平衡狀態;而分子蒸餾過程中,從蒸發表面逸出的分子直接飛射到冷凝面上,中間不與其它分子發生碰撞,理論上沒有返回蒸發面的可能性,所以,分子蒸餾過程是不可逆的。
3、普通蒸餾有鼓泡、沸騰現象;分子蒸餾過程是液層表面上的自由蒸發,沒有鼓泡現象。
4、表示普通蒸餾分離能力的分離因素與組元的蒸汽壓之比有關,表示分子蒸餾分離能力的分離因素則與組元的蒸汽壓和分子量之比有關,并可由相對蒸發速度求出。
裝置特性
高沸點物劑
使用專用的金屬部件,能處理沸點達450℃的物料在真空0.001mbar條件下。
粘性和容納有固體物料
浸入液膜的刮片產生強烈的剪切力,能相當可觀地減輕混合液的粘度,因此,可處理粘度達50Pas的物料。
固體含量富余料
浸入液膜的刮片產生一個強烈的攪拌力,同樣能防止固體在加熱面上結垢。
顏色敏感物料
在SY型短程蒸餾器中,本公司專業設計有一種裝置能防止金屬磨損。這一裝置重要,萬一處理顏色敏感物料因非揮發物(重組分)流經蒸餾器由于金屬磨損而受到影響。
高蒸餾比
使用制作精密的刮膜片,意味著液膜能被均勻地涂沫在加熱面并使整個受熱面濕潤,這就能滿足高蒸餾比的要求,使得90%以上產品被蒸餾,維持恒量的殘留物。
低維修費用
由于合理的結構設計和獨特的轉子,避免了刮膜片和金屬表面的磨損。
結構特點
1. 精密的轉子
深深浸入在液膜里的刮膜片產生的強烈湍流,導致在加熱面產生一個較好的熱傳遞比其它轉子系統(例大金屬棒上套PTFE管),下列例子為異氰酸酯的提純從預聚物里,含量小于0.1%。
| 名稱 | 轉子類型 | |
| SY-B | PTFE管 | |
| 熱傳導系統數(物料邊)(w/m2k) | 59.8 | 49.5 |
| 總傳熱系統(w/m2k) | 56.5 | 47.2 |
| 熱值(kw) | 27.1 | 22.6 |
| 加熱面積(m2) | 6 | 6 |
| 蒸發速率(kg/h) | 240 | 200 |
| 蒸餾比的關系(%) | 1.2 | 1 |
上述例子可得:同樣的加熱面積不同的刮膜片型式所產生的結果不同,SY-B 可提高20%的蒸餾量。
2. 精確的內置冷凝器
冷凝器一般采用盤管、U形管或管束,固定在蒸餾器的底部,冷凝器的形狀及與加熱面的間隙合理與否直接影響到產品的分離純度、得率及蒸餾器內的真空度。所以,公司根據長期從事蒸發/蒸餾的經驗,按照不同的工藝物料設計不同的內置冷凝器。
3. 霧沫分離器
霧沫分離器對于有此產品是必須的,它可以被插在轉子刮膜片之間,也可設在刮膜片后面。這些防濺裝置支掉由蒸汽流夾帶的任何液滴。液滴通過它們時轉向和拋回到加熱面被分離。
冷凝器一般采用盤管、U形管或管束,固定在蒸餾器的底部,冷凝器的形狀及與加熱面的間隙合理與否直接影響到產品的分離純度、得率及蒸餾器內的真空度。所以,公司根據長期從事蒸發/蒸餾的經驗,按照不同的工藝物料設計不同的內置冷凝器。
3. 霧沫分離器
霧沫分離器對于有此產品是必須的,它可以被插在轉子刮膜片之間,也可設在刮膜片后面。這些防濺裝置支掉由蒸汽流夾帶的任何液滴。液滴通過它們時轉向和拋回到加熱面被分離。
裝置類型
短程蒸餾器工作在高真空條件下,它對刮膜片及內置冷凝器具有特殊的要求,為了減少液膜厚度及強化液層的位移,本公司按刮膜片型式分如下2種類型:
SY-A型短程蒸餾器
刮膜片型式為徑向滑動型,它由WFE-VA 刮膜蒸發器演變而來;刮片鑲嵌在轉子的U導槽內,當轉子旋轉是時刮片受離心力的作用從U導槽內徑向滑到加熱壁面。導槽均勻分布在轉子圓周(見圖1),轉子呈鼠籠型,在導槽之間設有動態汽液分離裝置,防止液滴的飛濺及夾帶。
刮片材料一般由聚四氟乙烯、石墨等組成。
SY-B型短程蒸餾器
同樣SY-VB的刮膜片類似于WFE-VC(圖2),刮膜片靠離心力緊貼在加熱壁面上。在SY-B型短程蒸餾器中,刮片被限位防止金屬磨損,這個特性是重要的,萬一處理顏色敏感的物料,因為這物料的非揮發性成份流經這蒸餾器,它的顏色不因金屬磨損而受到影響。該類型應用廣,靠改變刮片的頻率和質量,調節離心力來適應各種粘度。刮板材質通常采用和蒸發器筒體相同的金屬材料、也可采用PTFE材質。
![]() SY-A型短程蒸餾器(圖1) |
![]() SY-B型短程蒸餾器(圖2) |
技術參數
| 處理條件 | 性能 |
| 進料速度(Kg/h) | 100 |
| Biol-off rate % | 到95 |
| 加熱溫度(℃) | 20~500 |
| 處理面壓力(mbar) | 0.001~1013 |
| 處理溫度下的粘度CP | 到50000 |
| 停留時間(min) | 小于1 |
| 干燥或懸浮物 | 是 |
這鉸鏈刮板短程蒸餾器對于蒸發器一個特定的、適當的濃縮和提純物質下列列出的一些典型事例
| 應用行業 | 可精制物品名稱 |
| 食品工業 | 單甘酯、棕櫚油、生育酚、魚肝油、角鯊烯、米糠油、脂肪酸及其衍生物、二烯酸、植物油、雙甘酯、乳酸、亞麻油、共軛亞油酸 |
| 醫藥工業 | ?;?、氨基酸酯、維生素E、葡萄糖衍生物、萜烯酯、天然或合成維生素、β-胡蘿卜素、姜辣素、辣椒色素 |
| 化學工業 | 芥酸酰胺、醇、油酸酰胺、甘油酯、除草劑、鹵代烷烴、殺蟲劑、硅油、蠟、二元脂肪酸、二聚酸 |
| 塑料工業 | 環氧樹脂、環氧化油、異氰酸酯、增塑劑、穩定劑 |
| 石油工業 | 基礎油、光亮油、潤滑油、凡士林、冷杉油、殘余焦油、廢潤滑油 |
| 化妝品工業 | 羊毛脂肪酸、羊毛脂、羊毛醇、烷基多苷、玫瑰油、姜油、辣椒紅色素等包括藻類、植物的根、花辣椒屬植物的提取物 |
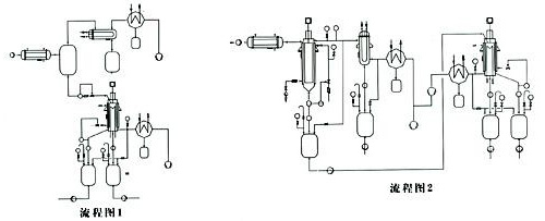
|
a)短程蒸餾器單級蒸餾單元: 經預熱、脫氣后的物料進入短程蒸餾器,輕組份被蒸發并在內置冷凝器上冷凝,它和重組份從不同的通道分別排出(流程圖1)。 b)刮膜蒸發器和短程蒸餾器組合蒸餾單元: 大量的低沸物在刮膜蒸發器里被除去,產品的蒸餾在后級的短程蒸餾器里產生(流程圖2)。 |
|
| 型號 | 蒸發面積(sqm) | 冷凝面積(sqm) |
| KD6 | 0.06 | 0.06 |
| KD10 | 0.1 | 0.11 |
| KD30 | 0.3 | 0.38 |
| KD75 | 0.75 | 1.2 |
| KD150 | 1.5 | 2 |
| KD300 | 3 | 5 |
| KD400 | 4.5 | 7.5 |
| KD600 | 6 | 10 |
| KD900 | 9 | 16 |
| KD1200 | 12 | 24 |
| KD1800 | 18 | 36 |
| KD2400 | 24 | 50 |
| KD3600 | 36 | 80 |
| KD5000 | 50 | 120 |









